





Das zeitgenössische Design mit mallorquinischer Tradition und Panoramablick auf das Meer und den Golfplatz von Canyamel, machen diese Villa zu einem absoluten Traumobjekt.
Das Neubau-Projekt befindet sich auf einem rund 1.000 m² großen Hanggrundstück, direkt neben dem atemberaubenden Golfplatz "Cap Vermell" und in Fußnähe zu einer kleinen Bucht.
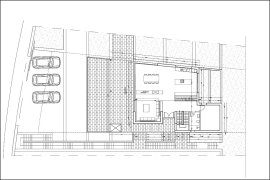
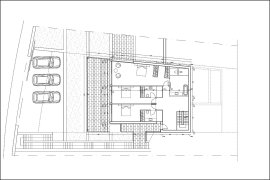
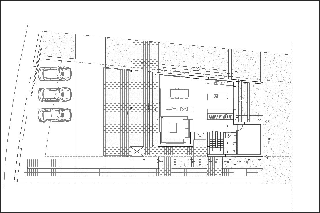
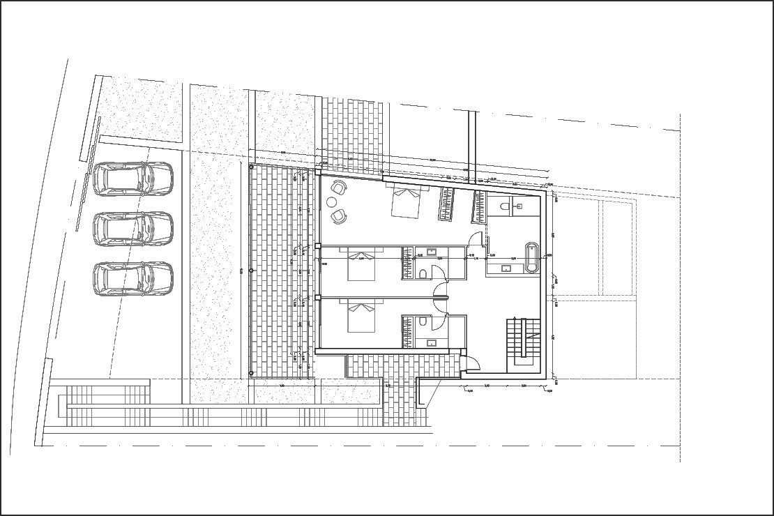
Auf drei Ebenen und 410 m² Wohnfläche verteilt, befinden sich in der ersten Etage drei Schlafzimmer mit Bad en-Suite und Zugang zu einer überdachten Terrasse. In der zweiten Etage gibt es eine vollausgestattete Designer Küche, einen großzügigen offenen Bereich mit Ess- und Wohnzimmer, ein Badezimmer, ein weiterer Raum der als Büro oder weiteres Schlafzimmer verwendet werden kann und ebenfalls Zugang zu einer überdachten Terrasse. Die überdachten Terrassen haben insgesamt eine Fläche von 135 m².
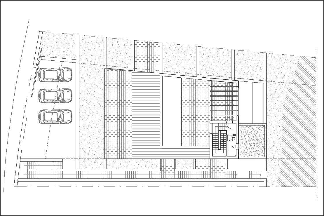
Auf der unteren Etage befindet sich ein Fitnessraum, Sauna und Weinkeller. Alle Etagen sind entweder mit der Treppe oder mit dem Aufzug zu erreichen.
Der Pool befindet sich auf der Dachterrasse, von hieraus haben Sie einen traumhaften Blick auf das türkisfarbene Meer und den Golfplatz.
Die Villa wurde nur mit Materialien von höchster Qualität gebaut und besticht ebenso durch die verwendeten europäischen Designermöbeln.
Fertigstellung:
Voraussichtlich Ende 2022
Alle unsere Immobilien werden schlüsselfertig und auf Wunsch komplett ausgestattet geliefert.
Ermita 17 bietet eine hochwertige Designerküche, die speziell für dieses Haus in Farbe und Form angepasst wurde, inklusive einem Miele-Geschirrspüler und Hausgeräten von Siemens oder Neff.
Im gesamten Haus wurden hochwertige Fliesen im Grossformat verlegt inklusive Fußbodenheizung. Die Nutzung von Sonnenenergie ist vorbereitet.
Canyamel bedeutet wörtlich “canya de mel”, was im deutschen “Zuckerrohr und Honig” bedeutet. Der exklusive Ferienort liegt an einem der östlichsten Punkte der Insel, nur sechs Kilometer südlich von Cala Ratjada entfernt und gehört zur Gemeinde Capdepera. Auch die bekannten Tropfsteinhöhlen Coves d’Arta befinden sich in der Nähe.
Das schöne und hügelige Hinterland lädt zum Fahrradfahren und zu tollen Spaziergängen ein. Durch den Ort fließt der Torrente de Canyamel, der die Südhälfte, mit der Fußgängerzone und Hotels von der Nordhälfte mit dem wunderschönen Golfplatz und ihren Villen trennt.
Canyamel hat einen traumhaften Sandstrand, der mit der Blauen Flagge ausgezeichnet wurde. Bars, Restaurants und Einkaufsmöglichkeiten sind zahlreich und in fussweite erreichbar. Alle Sportliebhaber können sich an den ca. 100 Tennisplätzen rund um Canyamel und an einem der besten Golfplätze Mallorcas erfreuen.
Für einen ruhigen Urlaub fernab vom Massentourismus ist Canyamel ein Paradies.